|
|
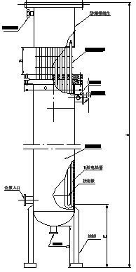
| 所属类别:防爆型天然气、乙炔气电加热器 |
[关闭本页] |
| 加热器 |
|
电加热器它主要是一种将电能转换为热能的一种国际流行的高品质长寿命电加热设备,它是采用流体热力学原理均匀地带走电热元件工作中所产生的巨大热量,使被加热介质温度达到用户工艺要求的一种加热设备。 |
|

|
电加热器
定义:电加热器它主要是一种将电能转换为热能的一种国际流行的高品质长寿命电加热设备,它是采用流体热力学原理均匀地带走电热元件工作中所产生的巨大热量,使被加热介质温度达到用户工艺要求的一种加热设备。
优点:
1、 内部控制系统依据输出口的温度传感器信号自动调节电加热器输出功率,使输出口的介质温度均匀。
2、 具有独立的过热保护装置,可以有效避免加热物料超温引起发热元件烧坏,可有效延长电加热器使用寿命。
3、 热响应快、控温精度高,综合热效率高。
4、 应用范围广、适应性强
5、 可全自动化控制,节能效果显著。
|
|
|

示意图 | |
|
|
|
|
|